• 1300 15 45 62
  • +61 490 815 610
  • This email address is being protected from spambots. You need JavaScript enabled to view it.
  • Mon-Fri 8:00 am to 5:00 pm

Projects

Some of Our Recent Projects

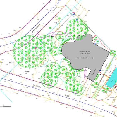
Scan to BIM

Scan to BIM

Scanning is an established method for generating existing drawings for renovation projects. This two-story house, built in the 1960s, was undergoing renovation, and the owners sought assistance. We supported the architects by providing a LOD 300 BIM model along with all the necessary 2D drawings. Additionally, the feature survey of the site was derived from 3D scanning data.


Back to Category

Date

05 July 2023

Categories

Architectural Surveys, Scan to BIM